
スイミングクラブ概要
町田市内、最初の室内温水公認プール
日本水泳連盟 公認NO.2198
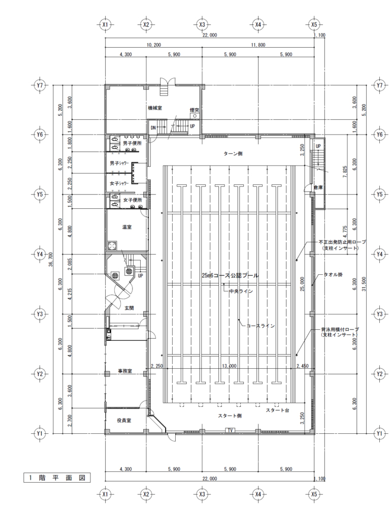
1階プール
25m ×13m×1.1m 水温30°
サウナ室、シャワー室、トイレ室、コースロープ等の収容室、プール内壁面に大型テレビ、受付事務員コーチ室、役員室、データタイム室

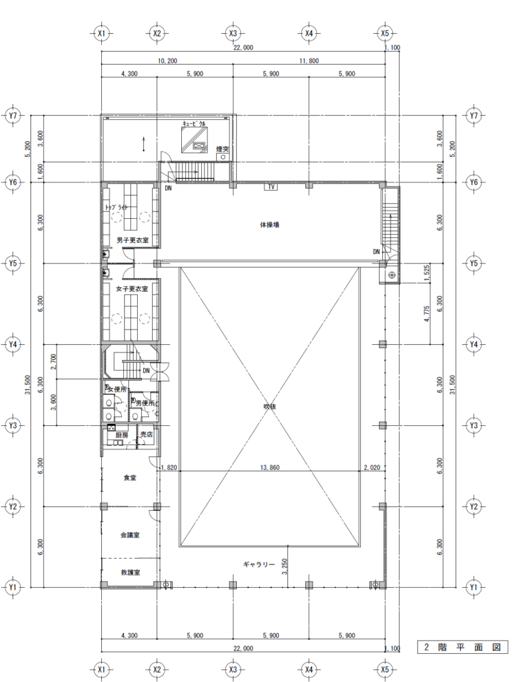
2階
体操場、会員用ロッカー脱衣室
体操場壁面にデータタイム1位、2位、3位 の自動計測機による電光掲示板設置
2階には会員の父兄が、直接声援出来る手摺り コ の字型ガラス付きギャラリー (声が通る臨場感)、喫茶室を設けました。後に、増築追加、1階メインプール横に、サブプールからトレーニング室へ改装しました。

会員送迎用バス、中型2台、小型1台を設置
木曽団地、山崎団地、藤野台団地、鶴川団地、成瀬台団地方面の子供達の送迎
〇町田スイミングクラブ役員
| 会長 | 波多野 勲(インターナショナルスイミング 代表) |
| 代表 | 越水 源造と母 コウ |
| 取締役 | 鈴木 政五郎(八千代銀行常務理事) |
| 取締役 | 千坂 宰太(千坂研究所 代表) |
| 顧問 | 古橋廣之進 [フジヤマのとびうお ] 日本水泳連盟 会長 |

波多野勲会長
永沢靖夫クラブ長
最初のコーチングスタッフと事務

オーストラリア水泳監督カーライル夫妻

カーライル夫妻のサイン

事務室



日本オリンピック委員会会長
日本水泳連盟会長
古橋廣之進

顧問 小野 三嗣 教授の後
馬詰 良樹 運動生理学
慈恵医科大学教授
小野三嗣 運動生理学
慈恵医科大学 教授
学芸大学 教授
1万歩の提唱者で有名
今では、患者が病院入院中、手術後直ぐに歩かされるのはこの先生のお陰です。
脳がやられて歩けなくなる防止の為、運動の必要性を説きました。
また、1964年の東京オリンピックのウエイトリフティングに於いて
三宅義信選手を優勝させたトレーニングドクターでした。
初代クラブ長 永沢 靖夫
プール管理からコーチの教育指導
初心者から選手を指導育成
非常に優秀な指導者
とびうお杉並ヘッドコーチ
を勤めていました。
2代目クラブ長 片沼 裕ニ
高等学校国体の水球大会に於いて最高殊勲選手賞獲得
* 国体東京代表
女子自由形 800メートルリレー 優勝アンカー 丸谷 直子
* 全国ジュニアオリンピック
男子17〜18歳 200メートル自由形優勝 吉原 健
吉原 健 選手は曽和 広子コーチがベビースイミングから育て上げました。
丸谷 直子選手と吉原 健選手を大成させた片沼裕二クラブ長は優秀な指導者でした。現在岡山
3代目クラブ長 永沢 靖夫
その間、波多野 勲先生には、2年間お世話、指導頂きました。
1975年4月16日オーストラリア水泳コーチ 、カーライル夫妻(2ビート泳法の開発で有名、当時、世界記録続出)が、町田スイミングクラブを訪問





カーライル夫妻写真
1976年5月4日
東京オリンピック優勝者 3種目優勝ドン・ショランダーが模範泳法を会員、父兄等に2階観覧席から披露

ショランダー夫妻歓迎観客

ドン・ショランダー
そして1977年12月10日
モントリオールオリンピック100m優勝者、ジム・モンゴメリー、会員、父兄等に模範泳法を2階観覧席から披露しました。
その後の経営は越水源造が運営致しました。
町田スイミングクラブの最盛期の会員数は、3000名超えを擁し全国的にも有名クラブに発展成長致しました。
また夏休みの短期コースの募集では長蛇の列ができました。
1996年9月20日、突然、クラブ長の永沢靖夫氏が、若くして急逝してしまいました。
また、それ以前に、町田市の教育委長から、これから町田市の少子化が急速に進む情報を既にゲットしておりましたので、1996年12月31日を以て21年間のスイミングクラブ経営を閉じました。

ジム・モンゴメリー模範泳法披露